Casa indipendente in vendita

San Vendemiano, Via Roma
€ 215.000
4 locali 4 locali
206 Mq 206 Mq
2 bagni 2 bagni

Casa indipendente in vendita

San Vendemiano, Via Roma

Descrizione annuncio

SAN VENDEMIANO!

NOSTRA ESCLUSIVA!

In tranquilla zona residenziale, proponiamo casa indipendente sviluppata su tre livelli, ideale per famiglie alla ricerca di ampi spazi e indipendenza.

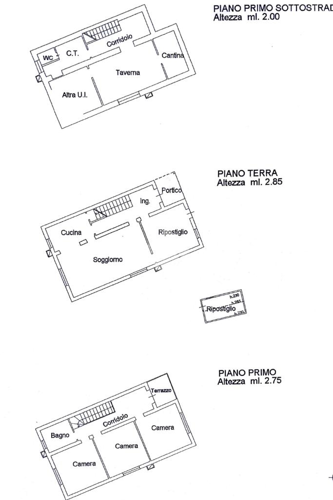
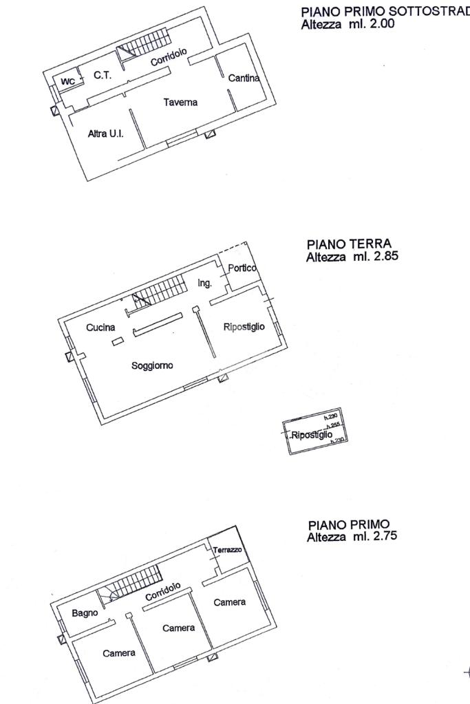
Al piano terra troviamo l’ingresso che conduce alla zona giorno open space con cucina e soggiorno, valorizzata da travi a vista che donano calore all’ambiente. Completa il piano una stanza versatile, ideale come studio, camera per gli ospiti o spazio hobby.

Il piano primo ospita la zona notte composta da tre camere da letto matrimoniali, bagno finestrato con vasca e terrazzo chiuso, utilizzabile come ulteriore spazio accessorio.

Al piano interrato sono presenti garage, taverna con cucina, lavanderia con caldaia e bagno, ambienti funzionali e ideali per la vita quotidiana e momenti conviviali.

Il tetto è stato oggetto di regolare manutenzione nel tempo.
L’immobile dispone inoltre di scoperto privato cementato di circa 200 mq, completo di pompeiana, perfetto come area relax o spazio esterno vivibile.

Recentemente l’immobile è stato oggetto di importanti interventi di aggiornamento: sono stati installati 5 condizionatori di ultima generazione con pompa di calore (1 unità da 18.000 BTU e 4 unità da 12.000 BTU), è stata sostituita la caldaia con un modello a condensazione di nuova generazione, è stata rinnovata la rubinetteria del bagno, rifatto il quadro elettrico esistente e installato un camino in acciaio per l’espulsione dei fumi.

Soluzione interessante per chi cerca una casa indipendente, con ottima distribuzione degli spazi e ampie metrature, in posizione comoda ai principali servizi del paese.

Per ulteriori informazioni contattateci in agenzia e seguiteci anche su Facebook, cliccando 'mi piace' sulla pagina 'Agenzia Tecnocasa Conegliano'

Scaricate gratuitamente l'app Tecnocasa sul vostro smartphone e sarete sempre aggiornati sulle nostre proposte di vendita

Mostra tutto

Nelle vicinanze

Trasporto pubblico Trasporto pubblico
stazione di Conegliano
stazione di Conegliano
3,0 Km
San Vendemiano
San Vendemiano
550 m
Bivio Gai
Bivio Gai
890 m
Ricariche auto elettriche Ricariche auto elettriche
EnelX San Fior
950 m
CONCESSIONARIO NISSAN Gidauto
1,2 Km
Prosecco Prive
1,8 Km
Comune di Conegliano TV
2,6 Km
Scuole Scuole
Scuole
240 m
Scuola primaria S. Francesco
550 m
Scuola secondaria di primo grado "G. Saccon"
690 m
Scuola Primaria J.F. Kennedy
2,2 Km
Istituto superiore statale “G. Marconi”
2,2 Km
Farmacia Farmacia
Farmacia Beninato Sartor
80 m
Farmacia Fossamerlo
1,8 Km
Farmacia dei Colli
1,9 Km
Farmacia Castello Roganzuolo
2,1 Km
Farmacia Dottor Fiorenzato
2,3 Km
Ospedali Ospedali
Ospedali
1,4 Km
Supermercati Supermercati
Famila
780 m
Super S
910 m
DiPiu' discount
970 m
Supermercato Eurospar
1,2 Km
Mega
1,5 Km
Negozi Negozi
Panificio Master
60 m
Negozi
740 m
Terranova
1,2 Km
C&A
1,3 Km
Takko
1,4 Km
Bar Bar
Bar Pasticceria Europa
40 m
Bar Papi
40 m
Bar Damian Alessandro
650 m
Fest-On
780 m
Why Ristorantino Wine Bar
1,7 Km
Ristoranti Ristoranti
Ristorante Pizzeria Rio
190 m
Ristorante Bar Da John
570 m
Roadhouse
1,5 Km
Japan House
1,6 Km
La Perla
1,8 Km
Mostra tutto

Caratteristiche

Rif.:
61171315
Piano:
3 di 3 (Piano su più livelli)
Box:
1
Posti auto:
2
Balconi:
1
Terrazzi:
1
Mostra tutto
Prezzo Prezzo
€ 215.000
Rata mutuo Rata mutuo
€ 1.021 / mese
Spese annue Spese annue
€ 0
Proponi il tuo prezzoProponi il tuo prezzo

Classe Energetica

E
E
E
E
E
E
E
E
E
EP globale non rinnovabile:
201.36 kW h/m² anno
EP globale rinnovabile:
9.04 kW h/m² anno
EP invernale del fabbricato:
EP estiva del fabbricato:
Anno di costruzione:
1963
Riscaldamento:
Autonomo
Tipo impianto:
A radiatori
Tipo alimentazione:
Metano

Ti interessa visionare l'immobile?

Fissa un appuntamento  Fissa un appuntamento

Richiedi informazioni

Clicca su Leggi per aprire l'informativa
* Questi campi sono obbligatori

Calcola il tuo mutuo

Semplice e senza impegno
Anticipo

( % )
Mutuo

( % )

pochi semplici passi

inserisci i tuoi dati
Questionario completato
Grazie per aver richiesto un appuntamento senza impegno con un nostro Consulente del Credito e Assicurativo.

Hai inserito correttamente tutti i dati necessari e a breve riceverai una e-mail con un link da convalidare per inviare i tuoi dati.
Affiliato
Studio Conegliano Srl
Via XI Febbraio, 55 31015 Conegliano (TV)

Il nostro staff


  • Edoardo Maria Cunzo
    Responsabile

  • Lara Dal Bianco
    Responsabile

  • Alice Gava
    Affiliata
Via XI Febbraio, 55 31015 Conegliano (TV)
Zona: Conegliano
Mostra su mappa
Orari: Lunedì - Venerdì : 9:00 - 12:30 / 14:30 - 19:00 Sabato : 9:00 - 12:00 Pomeriggio su appuntamento
Affiliato
Studio Conegliano Srl
Via XI Febbraio, 55 31015 Conegliano (TV)

2026 Tecnocasa Franchising S.p.A. - P. IVA 08365160152 - Via Monte Bianco 60/A 20089 Rozzano (MI). Ogni agenzia ha un proprio titolare ed è autonoma. Privacy policy | Policy utilizzo | Cookie policy