Palazzina in vendita

San Vendemiano, Via Resistenza - Fossamerlo
€ 350.000
5 locali 5 locali
350 Mq 350 Mq
2 bagni 2 bagni

Palazzina in vendita

San Vendemiano, Via Resistenza - Fossamerlo

Descrizione annuncio

SAN VENDEMIANO!

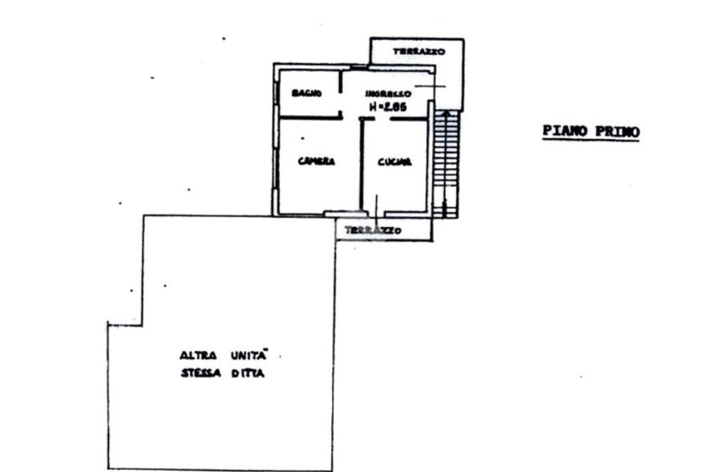
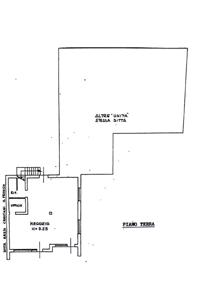
A San Vendemiano proponiamo una palazzina composta da due appartamenti e un negozio al piano terra, ideale per chi cerca un immobile versatile, adatto sia all’investimento che all’uso residenziale e commerciale. Al piano terra si trova il negozio, suddiviso in più locali e dotato di un bagno; lo spazio necessita di opere di ristrutturazione, ma offre un’ottima base per diverse tipologie di attività grazie alla sua disposizione interna.

Entrambi gli appartamenti si trovano al primo piano. Il primo è composto da una camera matrimoniale, un bagno finestrato con doccia e una luminosa zona giorno open space con cucina e soggiorno, dalla quale si accede a un comodo terrazzo. Il secondo appartamento, più ampio e recentemente tinteggiato nel 2024, dispone di tre camere spaziose, una zona giorno open space con cucina e salotto con accesso al terrazzo, un bagno finestrato con doccia e due split per il condizionatore che garantiscono un buon comfort durante tutto l’anno.

Completano la proprietà dei posti auto esterni, utili sia per i residenti che per la clientela del negozio. L’immobile rappresenta una soluzione interessante in una zona tranquilla e ben servita del paese.

Per ulteriori informazioni contattateci in agenzia e seguiteci anche su facebook, cliccando 'mi piace' sulla pagina 'Agenzia Tecnocasa Conegliano'

Scaricate gratuitamente l'app Tecnocasa sul vostro Smartphone e sarete sempre aggiornati sulle nostre proposte di vendita.

Mostra tutto

Nelle vicinanze

Trasporto pubblico Trasporto pubblico
stazione di Conegliano
stazione di Conegliano
2,0 Km
Fossamerlo - XII Apostoli
Fossamerlo - XII Apostoli
180 m
Fossamerlo - Edicola
Fossamerlo - Edicola
320 m
Ricariche auto elettriche Ricariche auto elettriche
Comune di Conegliano TV
1,2 Km
Prosecco Prive
1,2 Km
Cittadella dello sport
1,7 Km
EnelX San Fior
2,6 Km
Comune di Conegliano TV
2,8 Km
Scuole Scuole
Scuole
300 m
Scuola dell'Infanzia Via Matteotti
1,1 Km
Istituto d'Istruzione Superiore Marco Fanno
1,3 Km
Scuola Media Grava
1,5 Km
Scuola primaria S. Francesco
1,5 Km
Farmacia Farmacia
Farmacia Fossamerlo
200 m
Farmacia
1,4 Km
Farmacia Carli
1,5 Km
Farmacia Beninato Sartor
1,7 Km
Farmacia Dottor Fiorenzato
1,7 Km
Ospedali Ospedali
Ospedali
2,2 Km
Distretto Socio Sanitario Conegliano
2,3 Km
Presidio Ospedaliero "De Gironcoli"
2,4 Km
Pronto Soccorso Ospedale Conegliano
2,6 Km
Obitorio
2,7 Km
Supermercati Supermercati
Ipercoop
680 m
Aldi
910 m
Ariele Naturasì
920 m
Supermercato Eurospar
1,1 Km
Cadoro
1,2 Km
Negozi Negozi
By America
540 m
H&M
590 m
DeN
600 m
Stradivarius
600 m
Morgan Camicie
610 m
Bar Bar
Why Ristorantino Wine Bar
120 m
Bar Damian Alessandro
1,2 Km
Prosecco Privèe
1,2 Km
Fest-On
1,4 Km
Bar L' Angolo Blu
1,4 Km
Ristoranti Ristoranti
Japan House
110 m
Ristorante Pizzeria Gianca
310 m
Ristorante Bar Da John
1,2 Km
Ostaria al Contadino
1,2 Km
Nettuno
1,3 Km
Mostra tutto

Caratteristiche

Rif.:
61153183
Piano:
2 di 2 (Piano su più livelli)
Box:
1
Posti auto:
3
Terrazzi:
2
Camere da letto:
4
Mostra tutto
Prezzo Prezzo
€ 350.000
Rata mutuo Rata mutuo
€ 1.650 / mese
Spese annue Spese annue
€ 0
Proponi il tuo prezzoProponi il tuo prezzo

Classe Energetica

Questo immobile è esente da classe energetica
Anno di costruzione:
1967
Riscaldamento:
Autonomo
Tipo impianto:
A radiatori
Tipo alimentazione:
Metano

Ti interessa visionare l'immobile?

Fissa un appuntamento  Fissa un appuntamento

Richiedi informazioni

Clicca su Leggi per aprire l'informativa
* Questi campi sono obbligatori

Calcola il tuo mutuo

Semplice e senza impegno
Anticipo

( % )
Mutuo

( % )

pochi semplici passi

inserisci i tuoi dati
Questionario completato
Grazie per aver richiesto un appuntamento senza impegno con un nostro Consulente del Credito e Assicurativo.

Hai inserito correttamente tutti i dati necessari e a breve riceverai una e-mail con un link da convalidare per inviare i tuoi dati.
Affiliato
Studio Conegliano Srl
Via XI Febbraio, 55 31015 Conegliano (TV)

Il nostro staff


  • Edoardo Maria Cunzo
    Responsabile

  • Lara Dal Bianco
    Responsabile

  • Alice Gava
    Affiliata
Via XI Febbraio, 55 31015 Conegliano (TV)
Zona: Conegliano
Mostra su mappa
Orari: Lunedì - Venerdì : 9:00 - 12:30 / 14:30 - 19:00 Sabato : 9:00 - 12:00 Pomeriggio su appuntamento
Affiliato
Studio Conegliano Srl
Via XI Febbraio, 55 31015 Conegliano (TV)

2025 Tecnocasa Franchising S.p.A. - P. IVA 08365160152 - Via Monte Bianco 60/A 20089 Rozzano (MI). Ogni agenzia ha un proprio titolare ed è autonoma. Privacy policy | Policy utilizzo | Cookie policy